规范网
更新
当前位置:
规范网
资料
内容详情
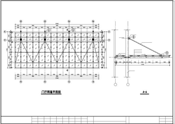
钢结构雨棚结构设计图(节点详图)
钢结构雨棚结构设计图(节点详图)
钢结构雨棚结构设计图(节点详图)
钢结构雨棚结构设计图(节点详图)
内容简介一钢结构门厅雨棚的结构设计详图,包括结构平面布置和节点详图
加入收藏
下载文件
声明:资源收集自网络或用户分享,仅供学习参考,如侵犯您的权益,请联系我们处理。
不能下载?报告错误
下页:
某地大型钢结构人行天桥结构示意图
相关推荐
3B282图集 带式输送机通廊建筑节点详图
国标图集03G363多层砖房钢筋混凝土构造柱抗震节点详图
景墙泰科石斜面景墙、台阶等节点详图
铝单板节点详图铝单板节点详细CAD图纸
全玻璃驳接爪式幕墙系统标准节点详图
钢结构雨棚结构设计图(节点详图)
下载文件
免费下载
标签
医药规范
工作通知
施工平面图
电子规范
机关单位工作计划
气象规范
电气电力计算表
安全帽标准
工程
12j201
管道标准
螺丝标准
过滤器标准
食用盐标准
质量管理体系标准
胶合板标准
税务规范
探伤标准
饮用水标准
平键标准
12j003
自我评价
电力规范
体育规范
暖通
CAD图纸、图集
电气安全标准
阻燃标准