
非机动车膜结构停车棚设计CAD图

非机动车膜结构停车棚设计CAD图

非机动车膜结构停车棚设计CAD图
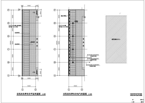
非机动车膜结构停车棚设计CAD,大力村非机动车停车棚工程位于大力村便民服务中心西侧,本次设计车棚为膜结构,所有杆件及预埋件须由厂家复核后方可施工,所有节点或构造做法均由厂家二次深化设计。图纸包括:膜结

非机动车膜结构停车棚设计CAD图

非机动车膜结构停车棚设计CAD图

非机动车膜结构停车棚设计CAD图
非机动车膜结构停车棚设计CAD,大力村非机动车停车棚工程位于大力村便民服务中心西侧,本次设计车棚为膜结构,所有杆件及预埋件须由厂家复核后方可施工,所有节点或构造做法均由厂家二次深化设计。图纸包括:膜结
声明:资源收集自网络或用户分享,仅供学习参考,如侵犯您的权益,请联系我们处理。
不能下载?报告错误