
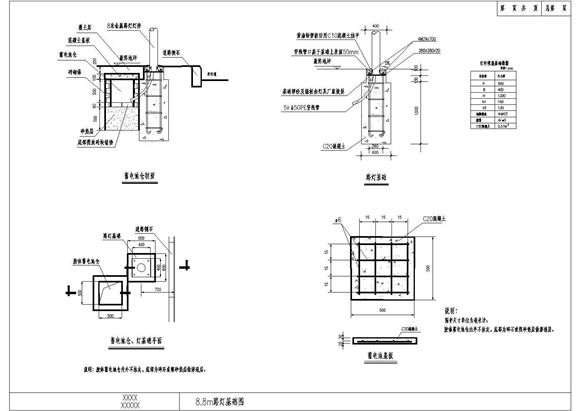
常见路灯基础CAD详图(含5套资料,包含3.5米,8米,8.8米,9米,10米,12米,13米,15米等)

常见路灯基础CAD详图(含5套资料,包含3.5米,8米,8.8米,9米,10米,12米,13米,15米等)

常见路灯基础CAD详图(含5套资料,包含3.5米,8米,8.8米,9米,10米,12米,13米,15米等)
本资料为:常见路灯基础CAD详图(含5套资料,包含3.5米,8米,8.8米,9米,10米,12米,13米,15米等),包括:3.5m、9m、10、12m、13m、15m常用路灯基础示意图、8.8m路灯