
低压湿式螺旋储气罐罐基础图(共6张图)

低压湿式螺旋储气罐罐基础图(共6张图)

低压湿式螺旋储气罐罐基础图(共6张图)
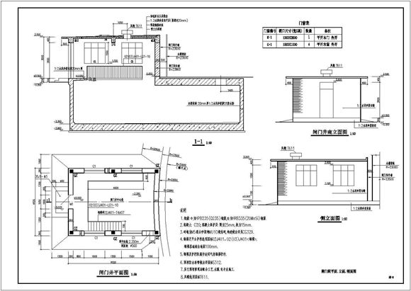
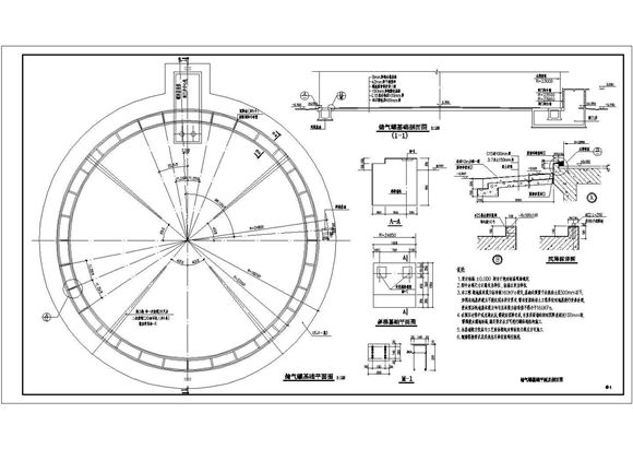
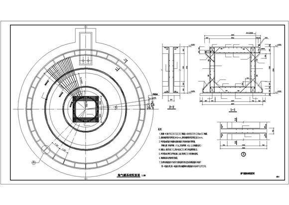
内容简介低压湿式螺旋储气罐罐基础,图纸包括:储气罐基础平面图,闸门间平面.立面.剖面图,储气罐基础配筋图,闸门间结构平面及配筋详图,施工缝连接筋做法,储气罐闸门井平面图,闸门井配筋图共计6张图。闸

低压湿式螺旋储气罐罐基础图(共6张图)

低压湿式螺旋储气罐罐基础图(共6张图)

低压湿式螺旋储气罐罐基础图(共6张图)
内容简介低压湿式螺旋储气罐罐基础,图纸包括:储气罐基础平面图,闸门间平面.立面.剖面图,储气罐基础配筋图,闸门间结构平面及配筋详图,施工缝连接筋做法,储气罐闸门井平面图,闸门井配筋图共计6张图。闸
声明:资源收集自网络或用户分享,仅供学习参考,如侵犯您的权益,请联系我们处理。
不能下载?报告错误