
比较完整的一套关于一梯两户户型平面图(全套、80多张)

比较完整的一套关于一梯两户户型平面图(全套、80多张)

比较完整的一套关于一梯两户户型平面图(全套、80多张)
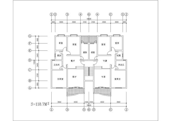
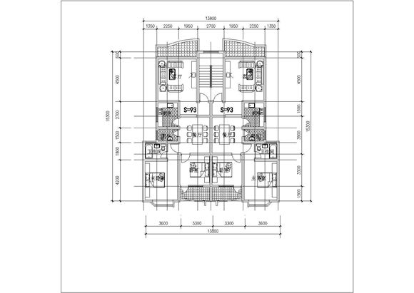
本资料为比较完整的一套关于一梯两户户型平面图(全套、户型图)图纸包括:师职北入口、型住宅、跃层底层平面图、型住宅、跃层顶层平面图、型住宅、标准层平面图等内容详实,可供参考比较完整的一套关于一梯两户

比较完整的一套关于一梯两户户型平面图(全套、80多张)

比较完整的一套关于一梯两户户型平面图(全套、80多张)

比较完整的一套关于一梯两户户型平面图(全套、80多张)
本资料为比较完整的一套关于一梯两户户型平面图(全套、户型图)图纸包括:师职北入口、型住宅、跃层底层平面图、型住宅、跃层顶层平面图、型住宅、标准层平面图等内容详实,可供参考比较完整的一套关于一梯两户
声明:资源收集自网络或用户分享,仅供学习参考,如侵犯您的权益,请联系我们处理。
不能下载?报告错误