当前位置:首页  资料内容详情

某市多层现代化别墅规划详图

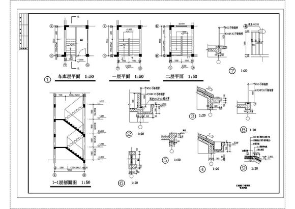
某市多层现代化别墅规划详图 某市多层现代化别墅规划详图 某市多层现代化别墅规划详图 本资料为现代风格坡屋顶二层独栋别墅建筑施工图.,其中内容包括:平面图,剖面图,效果图,建筑设计说明等。

某市多层现代化别墅规划详图

声明:本站为网络服务提供者及网络索引服务平台资源索引自网络/用户分享,如有版权问题,请联系站方删除。

不能下载?报告错误