
三菱电梯各种类型电梯样本详细图纸

三菱电梯各种类型电梯样本详细图纸

三菱电梯各种类型电梯样本详细图纸
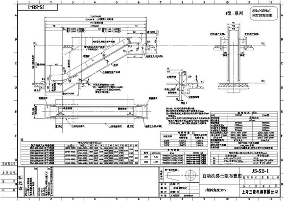
该图纸为三菱电梯各种类型电梯样本详细图纸,包括自动扶梯各个角度,800kg和1050kg两种,无机房客梯,有机房客梯,小机房客梯等。

三菱电梯各种类型电梯样本详细图纸

三菱电梯各种类型电梯样本详细图纸

三菱电梯各种类型电梯样本详细图纸
该图纸为三菱电梯各种类型电梯样本详细图纸,包括自动扶梯各个角度,800kg和1050kg两种,无机房客梯,有机房客梯,小机房客梯等。
声明:资源收集自网络或用户分享,仅供学习参考,如侵犯您的权益,请联系我们处理。
不能下载?报告错误