
比较经典的别墅平立剖面图(共10张)

比较经典的别墅平立剖面图(共10张)

比较经典的别墅平立剖面图(共10张)
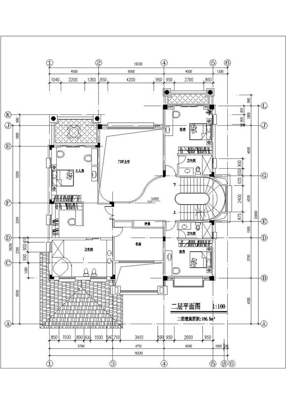
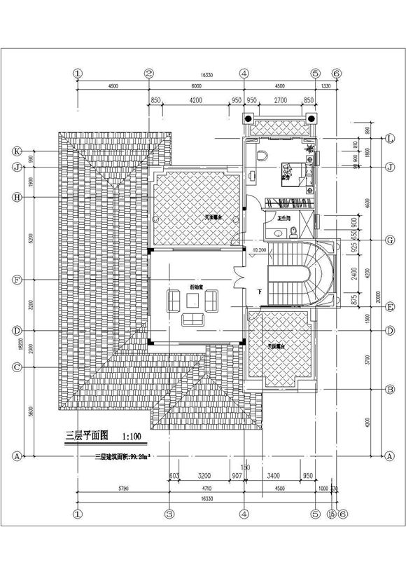
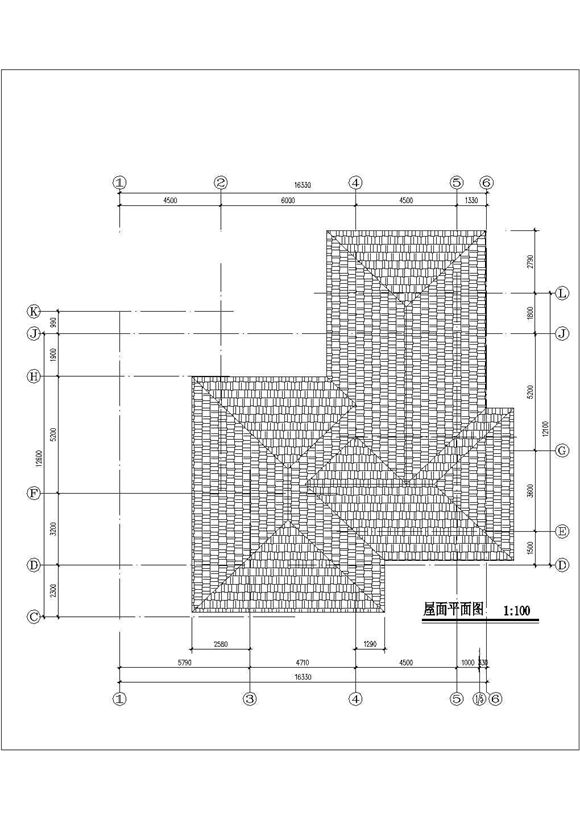
本资料为比较实用的别墅平立剖面图(共10张),其包含的内容为平面图,剖面图,立面图节点图纸等,比较齐全,可供设计师下载参考。

比较经典的别墅平立剖面图(共10张)

比较经典的别墅平立剖面图(共10张)

比较经典的别墅平立剖面图(共10张)
本资料为比较实用的别墅平立剖面图(共10张),其包含的内容为平面图,剖面图,立面图节点图纸等,比较齐全,可供设计师下载参考。
声明:资源收集自网络或用户分享,仅供学习参考,如侵犯您的权益,请联系我们处理。
不能下载?报告错误